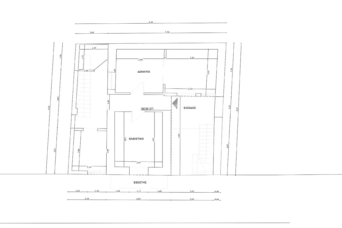
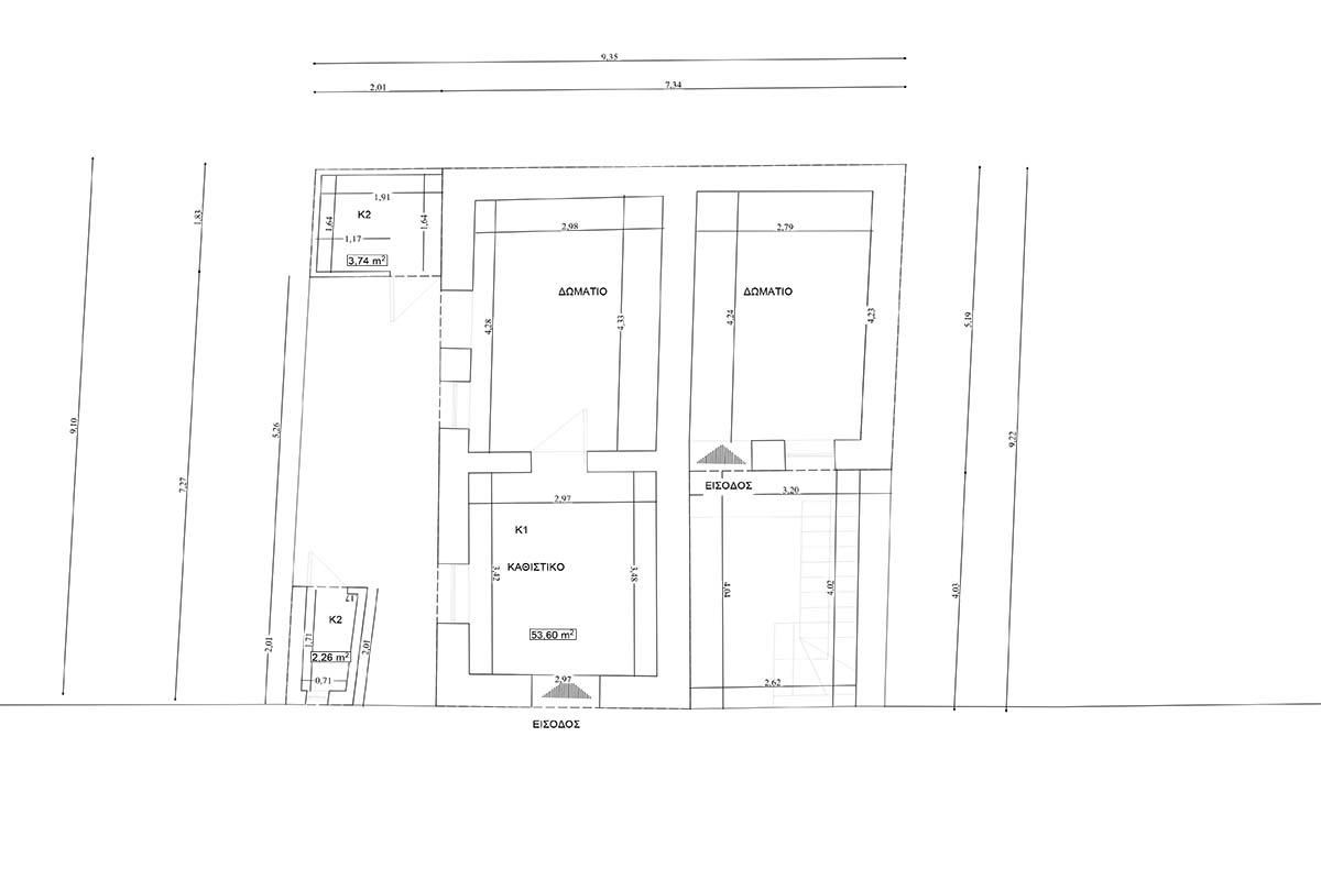
For Sale Double House in Sitia town. 3 main rooms downstairs and 3 more upstairs. Outbuildings in both floors.
Independent entrances. This building needs major renovation works.
There are courtyards, balcony on top floor and access to the roof terrace. Its location is at the lower part of Sitia town, four streets above the city center.


















